TOP Anlage Objekt auf der Shoppingmeile

Berliner Str. 44
02826 Görlitz Innenstadt
Deutschland

927.00 m²
Wohnfläche
€ 695.000,00
Kaufpreis

Details

  • Status: frei
  • Wohnfläche: 927 m²
  • Grundstücksfläche: 386.00 m²

Objektbeschreibung

Zum Verkauf steht eine Wohn - und Gewerbeimmobilie an der beliebten Görlitzer Haupteinkaufsstraße. Zentral gelegen und wenige Gehminuten vom neu sanierten Görlitzer Landratsamt, renommierten Senkenbergmuseum und zukünftig neu gestalteten Bahnhof entfernt.

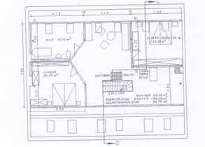
Das angebotene Mehrfamilienhaus verfügt über zwei Gewerbeeinheiten, welche sich im Erdgeschoss des Vorderhauses befinden sowie im Erdgeschoss und 1. Obergeschoss des Hinterhauses. Die Größe der Gewerbeflächen sind insgesamt ca. 300m² und sind räumlich miteinander verbunden. Können jedoch auch getrennt voneinander genutzt werden, durch zwei separate Eingänge.

 

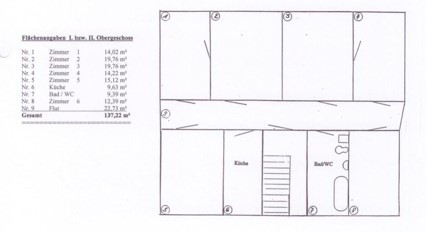
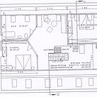
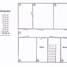
Das Vorderhaus besitzt zudem 7 Wohneinheiten, welche sich wie folgt aufteilen:

- Zwei * 6 RWE im 1. sowie 2. Obergeschoss

- Vier * 2 RWE im 3. Obergeschoss sowie Dachgeschoss

- Eine * 4 RWE als Maisonettewohnung im Dachgeschoss

 

Ein praktischer, voll unterkellerter Bereich bietet zusätzlichen Stauraum. Dieses Mehrfamilienhaus eignet sich hervorragend für Investoren, die eine langfristige Anlage in einer aufstrebenden und zentral gelegenen Stadt suchen. Nutzen Sie die Chance und erwerben Sie dieses vielseitige Objekt in idealer Lage.

Ausstattung:

Die Wohnungen befinden sich in einem soliden Zustand und wurden jeweils nach Auszug der Mieter renoviert. Ausgestattet sind die Einheiten mit PVC, Laminat oder Fließen. Die Bäder weisen Tageslicht und eine Badewanne auf.

 

* Teilweise Einbauküche

 

monatliche Nettokaltmiete 4.070,88 €

Lage:

Dieses charmante Mehrfamilienhaus befindet sich in der historischen Stadt Görlitz, eingebettet und zentral gelegen. Görlitz ist bekannt für seine gut erhaltene Altstadt, die eine faszinierende Mischung aus Gotik, Barock und Renaissance bietet. Die Umgebung bietet eine perfekte Balance aus urbanem Leben und naturnaher Erholung. Einkaufsmöglichkeiten, Cafés und Restaurants sind in unmittelbarer Nähe zu finden. Die zentrale Lage gewährleistet zudem eine exzellente Anbindung an den öffentlichen Nahverkehr - unweit vom Görlitzer Bahnhof entfernt, was sowohl Pendlern als auch Reisenden zugutekommt. Außerdem befindet sich die Lage in der Nähe der deutsch-polnischen Grenze, was zusätzliche kulturelle und touristische Möglichkeiten eröffnet. Ein ideales Domizil für Investoren und Bewohner, die den Charme und die Vorteile von Görlitz zu schätzen wissen.

Sonstiges:

Eine Bearbeitung Ihrer Anfrage ist, uns von unserem Auftraggeber (Verkäufer) nur gestattet,

wenn Sie uns mindestens folgende Kontaktdaten bekannt geben:

– Name – Vorname – Anschrift – Telefonnummer und E-Mail-Adresse.

Dabei ist eine diskrete Behandlung Ihrer Kunden- und Objektdaten,

bei uns selbstverständlich. Vielen Dank für Ihr Verständnis.

 

Das vorliegende Angebot beruht auf Detailinformationen des Verkäufers.

Eine Garantie dafür können wir nicht übernehmen.

 

Zwischenverkauf vorbehalten.

 

Stand 10.04.2026

 

 

www.wohnen-in-goerlitz.de

Überblick

Preis:
Kaufpreis € 695.000,00

Objekt Eigenschaften

  • Haustyp: Mehrfamilienhaus
  • : Mehrfamilienhaus
  • : Mehrfamilienhaus
  • : Mehrfamilienhaus
  • : Mehrfamilienhaus
  • : Mehrfamilienhaus
  • : Mehrfamilienhaus
  • : Mehrfamilienhaus
  • Nutzfläche ca.: 927 m²
  • Wohnfläche ca.: 927 m²
  • Grundstücksfläche ca.: 386 m²
  • Zustand: gepflegt
  • Heizungsart und Befeuerung: Zentralheizung, Gasheizung
  • Bodenbelag: Fliesen, Laminat, PVC
  • Baujahr: 1990
  • Anzahl Etagen: 4
  • Einbauküche: ja
  • Nettojahresmiete: € 48.850,56
  • Mieteinnahmen (Soll): € 48.850,56
  • Provision/Courtage: 3%
  • Energieausweis-Jahrgang: nicht nötig
  • Gebäudeart: Wohngebäude