3 RWE im ruhigen Hinterhaus mit Balkon

Löbauer Str. 7
02826 Görlitz Innenstadt
Deutschland

3.00
Zimmer
71.00 m²
Wohnfläche
€ 400,00
Kaltmiete

Details

  • Status: frei
  • Zimmer: 3
  • Wohnfläche: 71 m²

Objektbeschreibung

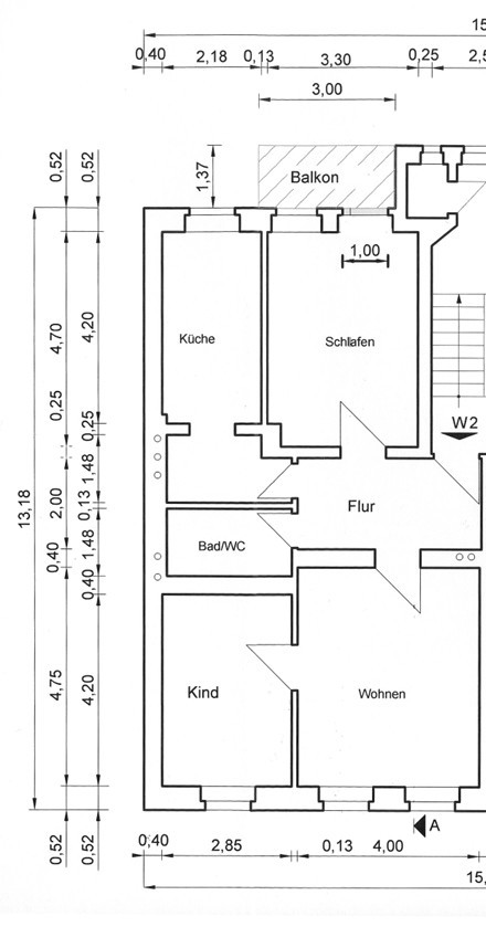
Diese gepflegte 3 Raumwohnung in einem Görlitzer Hinterhaus ist ab dem 01.06.2026 bezugsfrei.

Die Wohnung ist praktisch geschnitten und verfügt über helle Räume.

Der Balkon ist ca. 5m² groß und lädt sowie der begrünte Hof mit kleinem Kinderspielplatz plus Grillplatz zum Verweilen ein.

Ein Kfz-Stellplatz im Hinterhof kann zusätzlich für 25,- EUR im Monat angemietet werden.

Lage:

In der Innenstadt von Görlitz gelegen. In wenigen Gehminuten erreichen Sie den neu gestalteten Spiel- und Sportplatz auf dem ehemaligen Bahngelände.

Einkaufsmöglichkeiten, Kindertageseinrichtungen sowie der ÖPNV fußläufig zu erreichen.

Sonstiges:

Achtung! Es handelt sich um eine Gasetagenheizung - die Heizkosten kommen zusätzlich auf die angegebene Miete dazu. Der Mieter schließt mit dem Gasversorger ein Vertrag.

 

*Sattelitenfernsehen

*Breitbandkabel Anschluss in der Wohnung

Überblick

Preis:
Kaltmiete: € 400,00
Nebenkosten: € 90,00

Objekt Eigenschaften

  • Wohnungstyp: Etagenwohnung
  • Nutzfläche ca.: 71 m²
  • Wohnfläche ca.: 71 m²
  • Zustand: gepflegt
  • Anzahl Schlafzimmer: 2
  • Anzahl Badezimmer: 1
  • Heizungsart und Befeuerung: Gasheizung, Etagenheizung
  • Bodenbelag: Fliesen, Dielen
  • Baujahr: 1900
  • Etage: 3
  • Anzahl Etagen: 3
  • Balkon/Terrasse: ja
  • Kaution: € 800,00
  • Energieausweis-Jahrgang: nicht nötig
  • Gebäudeart: Wohngebäude