Neu sanierte Praxis oder Büroetage mit Fahrstuhl zu vermieten

Reserviert

Zittauer Straße 15
02826 Görlitz Südstadt
Deutschland

6.00
Zimmer
€ 870,00
Kaltmiete

Details

  • Status: reserviert
  • Zimmer: 6
  • Fläche: 153.00 m²

Objektbeschreibung

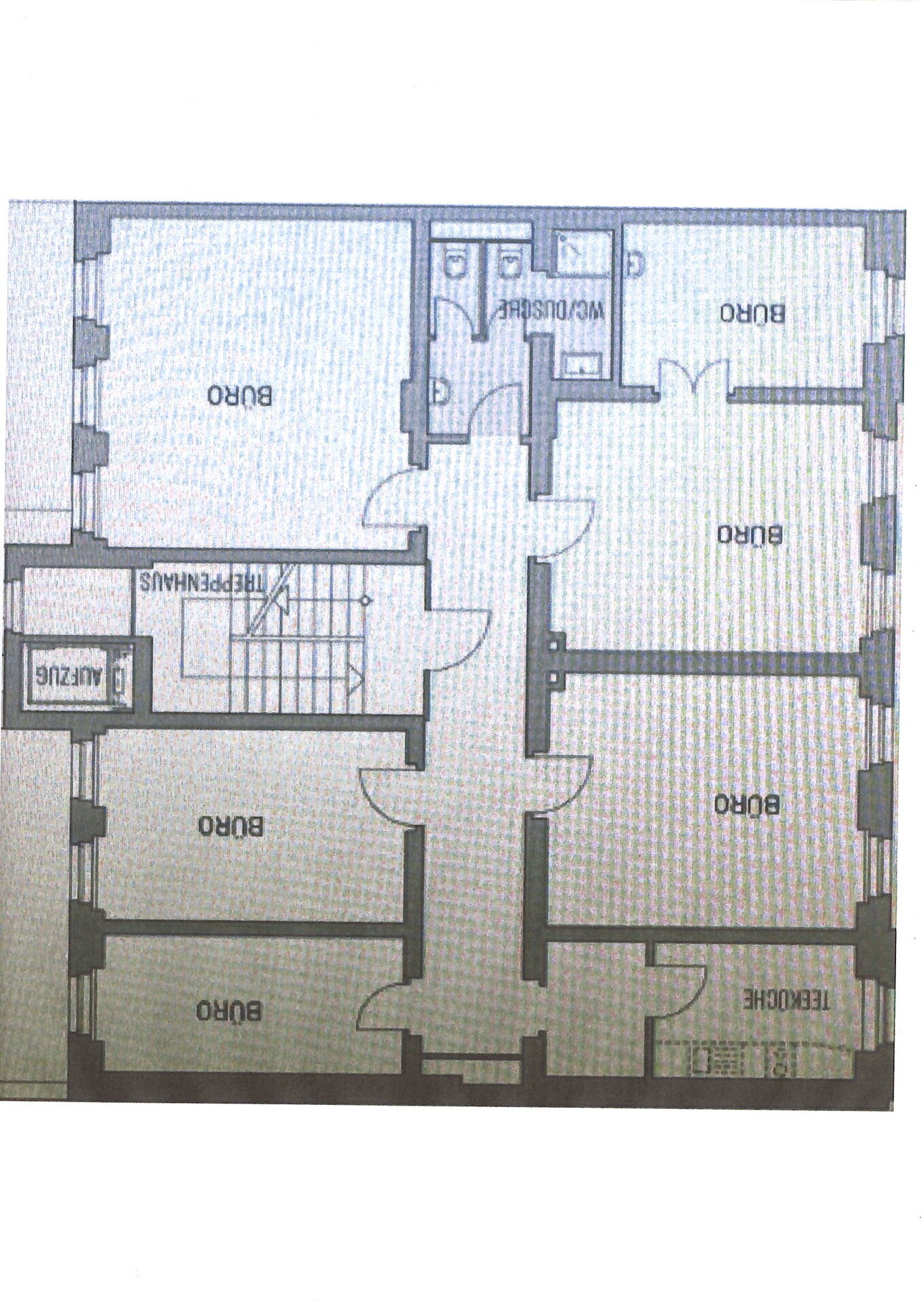
Die schöne Büro/ Praxisetage mit einer Fläche von ca. 153,00 m²ist bereit zum Erstbezug nach Komplettsanierung. Sie befindet sich im 1.OG des ruhigen Wohngebäudes.

Insgesamt stehen 6 Büroräume in verschiedenen Größen zu Verfügung. Der Sanitärbereich beinhaltet einen Vorraum mit Waschbecken sowie ein WC und ein separates WC mit Dusche und Waschbecken.

Ein weiteres Ausgussbecken mit Wasseranschluss befindet sich in einem angrenzenden Büroraum.

Eine Teeküche bzw. Pausenraum ist ebenfalls zu den 6 Zimmern vorhanden.

Ausstattung:

* Aufzug halbe Treppe

* DV Verkabelung

* Beheizung über neue Brennwerttechnik - Gas Etagen Heizung (Endenergiebedarf 156,7 kWh(m²*a)

* Der Bodenbelag in den Büroräumen und Flur ist graufarbiger Linoleumbelag

* 3 fach verglaste Fenster

Lage:

Ihre neue Büro bzw. Praxis befindet sich in der Südstadt, fußläufig in ca. 3 Minuten erreicht man Haltestellen von Bus und Bahn, sogar diverse Zugverbindungen.

Das Parkhaus, verschiedene Kindereinrichtungen, Einkaufsmöglichkeiten sowie der Tierpark sind in unmittelbarer Nähe

Sonstiges:

* 6 Zimmer

* 1 Teeküche

* 1 Sanitärbereich (Waschbecken, Dusche, 2*WC, Handwaschbecken)

* 1 Ausgussbecken mit Wasseranschluss

* 1 Kellerraum

* Fahrradraum vorhanden

 

Kaltmiete: 870,00 € netto zzgl 19% MwSt.

Betriebskosten: 220,00 €

Heizkosten: ext. Abrechnung

Überblick

Preis:
Kaltmiete: € 870,00
Nebenkosten: € 220,00

Objekt Eigenschaften

  • Gesamtfläche ca.: 153 m²
  • Bürofläche ca.: 153 m²
  • Zustand: saniert
  • Heizungsart und Befeuerung: Gasheizung, Etagenheizung
  • Etage: 1
  • Personenaufzug: ja
  • Gebäudeart: Gewerbe